ニューノルディックスタイル
(柔らかく落ち着いた異素材ミックスの家)




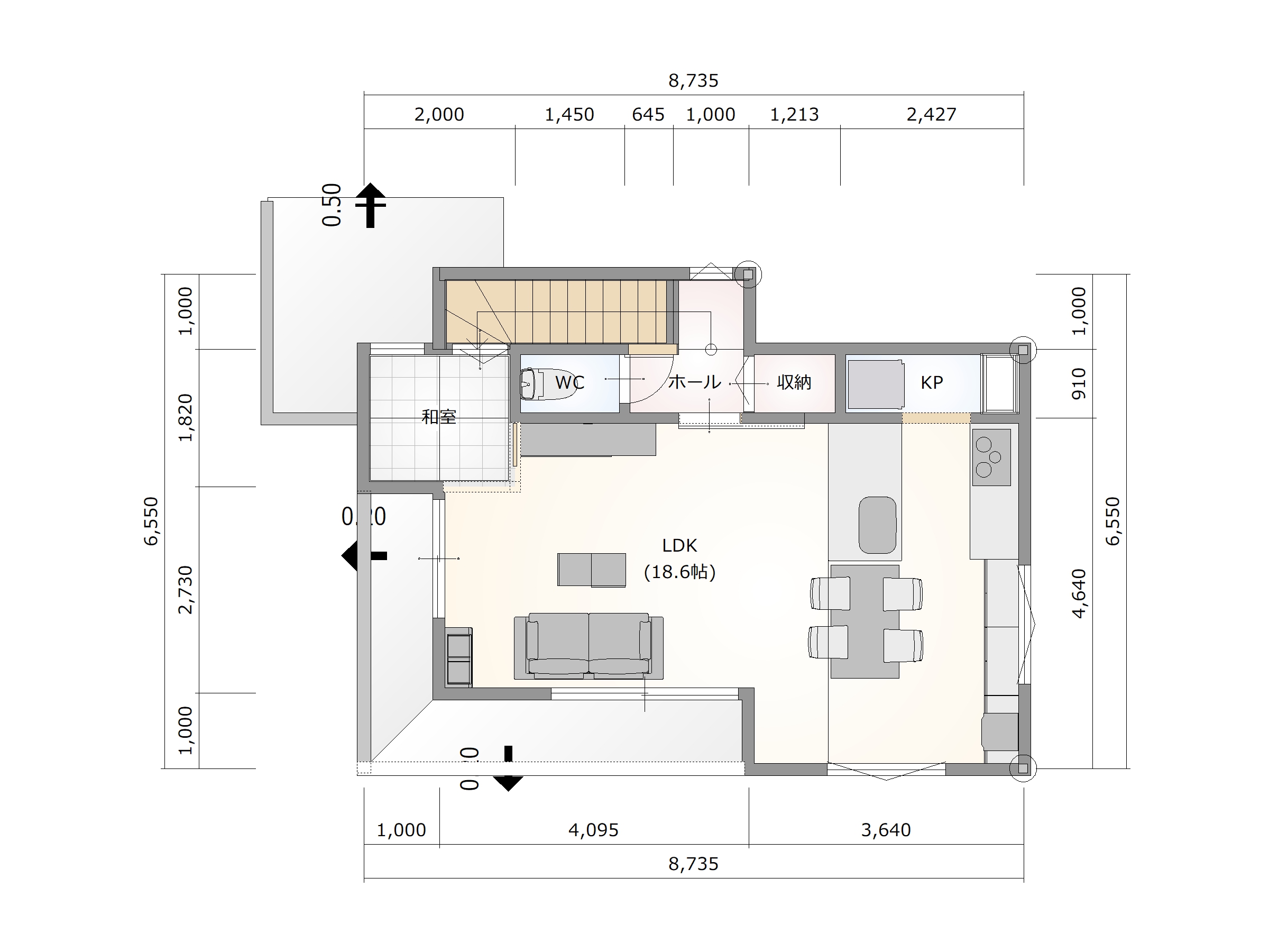
1階間取り図

2階間取り図
~世代を越え、受け継がれる街~
「5号地」 ~ちょっぴり贅沢な建売住宅~
家具・エアコン・外構工事すべて込み
長期優良住宅
※間取り図は、現況を優先いたします。
合計:40,300,000円
【返済例】借入4030万円 佐賀銀行 40年 1.05%
月々 79,885円 ボーナス時/138,064円
ボーナス無しでも毎月 102,856円
MAP
□広告主の名称又は商号(取引態様)/ 株式会社佐世保地所
□広告主の事務所名称 / 瀬戸越本社事務所
□広告主の事務所の所在地 / 佐世保市瀬戸越3丁目4番1号
□広告主の事務所の電話番号 / 0956-40-5055
□宅建業法による免許番号 /長崎県知事免許(11)第1597号
□所属団体名及び公正取引協議会加盟事業者である旨 /(公社)長崎県宅地建物取引業協会会員、(一社)九州不動産公正取引協議会加盟
□所在地 佐世保市矢峰町223-22
□交通 / 淀姫神社前バス停徒歩1分
□建築確認番号/第ERI-25038283号
□土地面積/100.95㎡(30.53坪)
□建物面積/96.87㎡(29.30坪)
□建ぺい率(%)/ 60
□容積率(%)/ 200
□地目 / 宅地
□用途地域 / 準住居地域
□主たる設備等の概要 / 電気:九州電力(株)、ガス:LPガス・(西部ガス(株))、上水道:佐世保市水道、汚水・雑排水:浄化槽
□私道負担面積 / 共有:位置指定道路 180㎡
□建築条件 / 本分譲地の土地売買契約は、契約締結後3ヶ月以内に売主である株式会社スタンドハウス又は販売代理の株式会社佐世保地所との間で建築工事請負契約が成立することを条件として効力を生じます。期限までに、建築工事請負契約が成立しなかったときは、土地売買契約の無効が確定し、受領済の手付金等は、全額無利息にてすみやかに返還いたします。
□情報登録日 / 2025.8.26
□その他の重要な事項 ・・・別途費用/加入金、審査及び検査手数料 ●道路幅員/11m(国道)及び5m(位置指定道路)●都市計画区域、市街化区域
学校関係
●東大野保育園 徒歩4分(約350m)
●大野小学校 徒歩19分(約1500m)
●大野中学校 徒歩19分(約1500m)
●長崎県立佐世保工業高等学校 徒歩13分(約950m)
病院施設
●山口てつ整形外科クリニック 徒歩6分(約500m)
●佐世保労災病院 徒歩12分(約950m)
商業施設
●ダイソー佐世保矢峰店 徒歩1分 (90m)
●マックスバリュー池野店 徒歩2分(約190m)
●ドラックストアモリ矢峰店 徒歩3分(約220m)
●ユニクロ佐世保矢峰店 徒歩3分(約240m)