家事動線を重視したクール和モダンな家 R8年3月完成予定




C-8号地 ~ちょっぴり贅沢な建売住宅~
家具・エアコン・外構工事すべて込み
長期優良住宅


【価格】 39,000,000円
【返済例】
3,900万円借り入れ
佐賀銀行 金利1.05% 40年(ガン団信を含)
毎月:84,225円 ボーナス月加算:92,043円
ボーナス無しの場合でも99,538円
□所在地 / 佐世保市権常寺町359-29
□交通 / 権常寺町バス停徒歩4分JR早岐駅車6分
□総区画数 / 53区画
□建ぺい率(%)/ 50
□容積率(%) / 80
□地目 / 宅地
□用途地域 / 第一種低層住居専用地域
□主たる設備等の概要 / 電気:九州電力(株)、ガス:LPガス、上水道:佐世保市水道、汚水・雑排水:佐世保市下水道
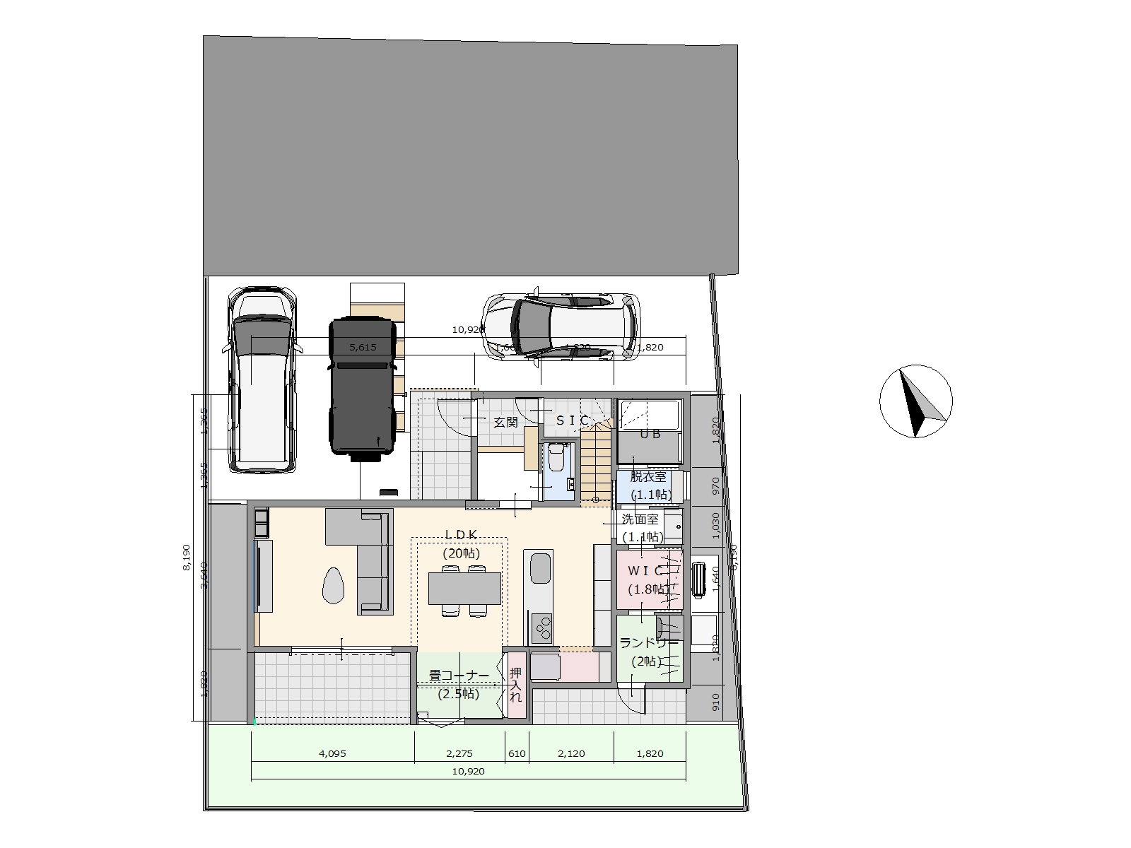
□敷地面積/176.53㎡(53.40坪)
□延床面積/104.46㎡(31.59坪)
□建築確認番号 ERI-25025274
□その他の重要な事項 ・・・別途費用/水道分担金、加入金、審査及び検査手数料・下水検査料含む 道路幅員/6m(アスファルト舗装) 都市計画区域、市街化区域

MAP
買物・交通・公共
●イオンタウン早岐店 車で6分(約2300m)
●マルキョウ早岐店 車で4分(約1200m)
●エレナ早岐店 車で4分(約1100m)
●十八親和銀行 車で5分(約1600m)
●佐世保早岐郵便局 車で5分(約1700m))
●花高皆瀬バス停 徒歩5分(約380m)
●JR早岐駅 車4分(約1200m)
教育施設
●花高保育園 車で2分(約850m)
●花高幼稚園 車で2分(約900m)
●花高小学校 徒歩10分(約800m)
●早岐中学校 徒歩28分(約2200m)
医療施設
●村上医院 車で4分 (1300m)
●さいくさ小児科 車で4分(約1300m)
●ななくま歯科医院 車で2分(約800m)